二层带院子的田园风格别墅
来源: 2020-01-16 10:31:49
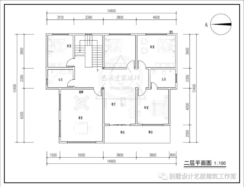
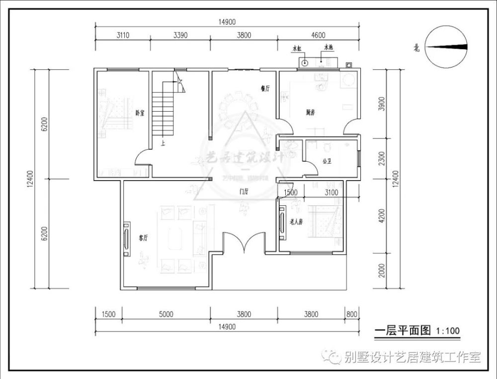
项目位于福建省南平市浦城县管厝乡,开间尺寸14.9米,进深12.4米,一层建筑面积为160.2平方。
下面是别墅布局设计图
一层布局图
二层布局图
外观效果图
模型图
本项目最开始的时候设计的一款布局,业主没采用,但是也放上来吧
一层布局初稿
二层布局初稿
个人觉得我设计的首款布局比较好,但是业主要求楼梯必须做三跑,我给他解释说楼梯形式要根据户型需要和尺寸的配合来定,最好别限定只能做三跑,但是业主还是坚持必须做三跑,其实三跑楼梯不做复式客厅真的是没必要,浪费面积施工复杂,但是作为服务方还是得按照业主意思来呀,所以经过大约十几个布局修改图的讨论,几十次的修改,够业主得到了自己满意的户型。
在农村就应该有一栋这样漂亮的大别墅!综合之前文章的别墅,几款乡村别墅户型设计图你最喜欢哪一款呢?
编辑:ymyg

